Michelsen Binder Makler Stahnsdorf: Haus in Stahnsdorf kaufen

das Plus für Ihre Immobilie

EINFAMILIENHAUS
IN SCHWIELOWSEE / GELTOW

Gemütliches Haus mit kleinem Garten nahe Petzinsee & eigenem Bootsliegeplatz: RUHE. NATUR. WASSERNAH-

Einfamilienhaus in Berlin Lichtenrade Marienfelde Britz Schöneberg Tempelhof kaufen

Kaufpreis 2

475.000,- €

Käufercourtage

3,57 % inklusive USt.

Verkäufercourtage

3,57 % inklusive USt.

EXPOSÈ DOWNLOAD



IHR PERSÖNLICHER KONAKT


Dipl.-Ing. Peter Josef Binder

03329 615 560

pjb @ michelsen-binder.immo

Heute in Schwielowsee/Geltow

Virtuell 360° umschauen

Einfamilienhaus im Bungalowstil Schwielowsee/Geltow mit Bootsliegeplatz
Sie erhalten mit dem PDF-Exposé im Download einen QR-Code mit dem Link zu einem exklusiven virtuellen 360°-Rundgang.

Schnell ins eigene Zuhause

FINANZIERUNG

Sie haben keine Lust, zu 10 oder mehr Banken zu laufen und nach günstigen Konditionen für Ihre Baufinanzierung zu fragen?
Unsere Finanzierungsexperten von BAUFISMART.ONLINE machen das für Sie. Und sie machen das sogar gerne!
Unsere Finanzierungsexperten von BAUFISMART.ONLINE vergleichen für Sie die Konditionen von mehr als 20 Banken und finden so das optimale Angebot für Ihre runde Baufinanzierung.
Jetzt informieren: QuickCheck ausfüllen und absenden!

Das neue Zuhause schon mal virtuell einrichten

Wie wäre es, wenn Sie schon mal zu Hause am Computer mit dem Gestalten und Einrichten Ihres neuen Zuhauses beginnen können?

Wir stellen Ihnen kostenfrei das  voreingerichtete Projekt zur Verfügung und Sie brauchen nur noch virtuell Möbel rücken und Farben gestalten....

Die Open Source Software Sweet Home 3D ist ganz einfach zu bedienen. Zur offiziellen Website von Sweet Home 3D klicken Sie hier.
zum PDF-Exposé mit Link zum Projekt

Gemütliches Haus mit kleinem Garten nahe Petzinsee & eigenem Bootsliegeplatz:
RUHE. NATUR. WASSERNAH.

OBJEKTBESCHREIBUNG

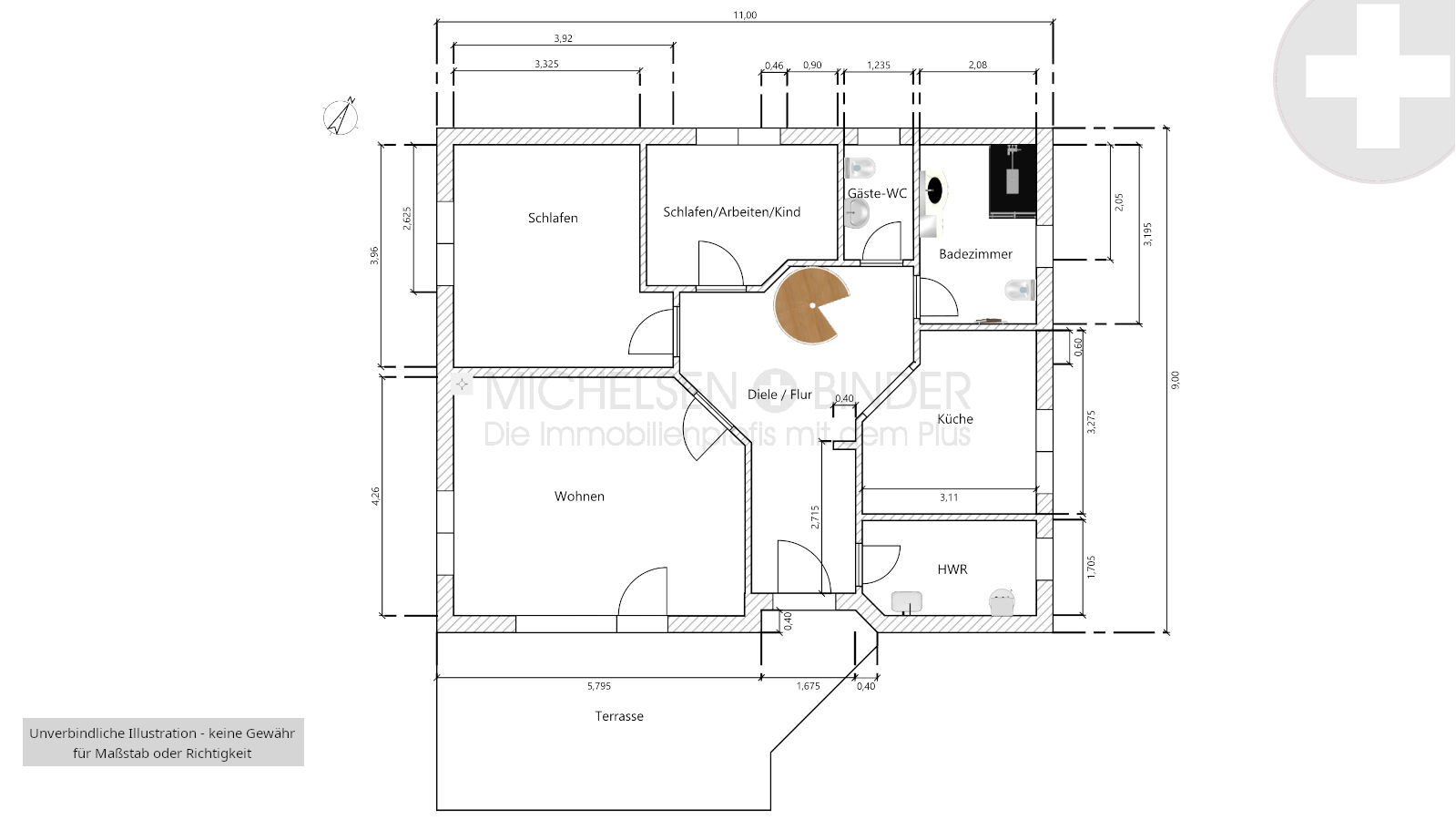
Dieses charmante, effizient gestaltete Haus bietet eine durchdachte Raumaufteilung und ein angenehm überschaubares Wohnkonzept. Im Erdgeschoss erwarten Sie ein einladendes Wohnzimmer mit gemütlichem Kaminofen, ein ruhiges Hauptschlafzimmer sowie ein zusätzliches Zimmer, das sich ideal als Kinder-, Gäste- oder Arbeitsraum nutzen lässt.
Die funktional angelegte Küche fügt sich harmonisch in den Grundriss ein, während eine großzügige Diele ein offenes Ankommen ermöglicht und alle Räume auf kurzen Wegen verbindet.

Ein besonderes Highlight ist die Lage: Nur etwa 300 Meter trennen das Grundstück vom Petzinsee. Zum Objekt gehört außerdem ein eigener Bootsliegeplatz – ein seltener Vorteil, der unmittelbaren Zugang zum Wasser ermöglicht und das Freizeitangebot deutlich erweitert. Ob für Ausflüge mit dem Boot, entspannte Abende am See oder tägliche Naturmomente: Der Petzinsee liegt praktisch vor der Haustür.

Mit einem Kaufpreis von unter 500.000 € bietet dieses Angebot eine attraktive Kombination aus naturnaher Lage, praktikabler Wohnfläche, pflegeleichtem Grundstück und exklusivem Zugang zum See.. (weiterlesen im PDF-Exposé)
Hier können Sie das Exposé sofort herunterladen: PDF-Exposé-Magazin

OBJEKTDATEN

Immobilientyp

Einfamilienhaus

Baujahr

1999

Wohnfläche 1

ca. 102,59 m²

zusätzliche Nutzfläche

ca. 15 m² (Garage/Schuppen)

Gesamtfläche

ca. 117,59 m²

Grundstücksgröße

ca. 473  m² zzgl. 34 m² Anteil an der Straße

Geschosse

(ohne Keller, ohne Dachgeschoss)

1

Zimmer

(ohne Küche, ohne Bad)

5

Schlafzimmer

2

Badezimmer

1,5

Bausubstanz

Massivhaus ohne Keller

Zustand

gepflegt

Sonderausstattung

Kaminofen, Bootsliegeplatz

Ausstattung

gehoben

Energieausweis

Energiebedarfsausweis

Endenergiebedarf 120 kWh/m²a

Effizienzklasse D

gültig bis 05.12.2035

Treibhausgasemission

CO2-Emissionen 28,77 kg/(m²×a)

Kaufpreis 2

475.000,00 €

Käufercourtage

3,57 % inklusive USt.


Die Courtage ist vom Käufer direkt zu entrichten.


Der Maklervertrag mit uns kommt durch schriftliche Vereinbarung oder durch die Inanspruchnahme unserer Maklertätigkeit auf der Basis des Objektexposés und seiner Bedingungen zustande. Die Käufercourtage ist mit wirksamem notariellen Kaufvertrag verdient und fällig.

1 In der Wohnfläche sind Hobbyräume, Balkone und  überdachte Terrassen zu 50 %, sonstige Terrassen zu 25 % enthalten.

2 bei hoher Nachfrage kann es zu einem Bieterverfahren kommen und der Kaufpreis kann dann höher sein als der oben angegebene Kaufpreis


RECHTLICHER HINWEIS:

Die in den Angeboten enthaltenen Angaben und Informationen basieren auf den uns von dem jeweiligen Auftraggeber/Kunden erteilten und zur Verfügung gestellten Auskünften.

Die Angebote sind freibleibend und unverbindlich, insbesondere behalten wir uns Zwischenverkauf und Zwischenvermietung bzw. Zwischenverpachtung ausdrücklich vor.

Eine Haftung für die inhaltliche Richtigkeit und Vollständigkeit der gemachten Angaben und Informationen ist ausgeschlossen.

In der Wohnfläche sind Hobbyräume, Balkon und  überdachte Terrassen zu 50 %, sonstige Terrassen zu 25 % enthalten.

AUSSTATTUNG

Dieses Haus bietet alles, was Sie zum Wohlfühlen brauchen. Sie können den gepflegten Garten sofort genießen und passen nur die Einrichtung an Ihre Wünsche an. Und wenn Sie möchten, kümmern wir uns auch darum.


Die wichtigsten Details habe ich Ihnen hier schon einmal zusammengestellt:

  • Bad mit bodengleicher Dusche im Erdgeschoss
  • Gäste-WC
  • zusätzliches WC im Dachgeschoss
  • Bäder und WC mit Fenster
  • sonniger Wohn-Essbereich mit Kaminofen und direktem Zugang zur Terrasse
  • große Wohndiele
  • Einbauküche im Landhausstil
  • gemütlicher Teppichboden im Wohn-Essbereich
  • Küche, Diele, Bäder, WC und Eingangsflur gefliest
  • Fenster mit Zweischeiben-Isolierverglasung
  • Terrassentür und Fenster mit Rollläden, manuell
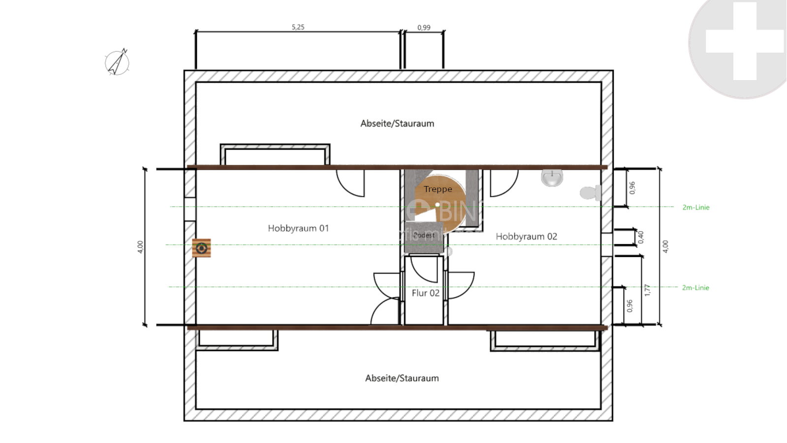
  • ausgebautes Dachgeschoss mit zwei Räumen
  • Gaszentralheizung mit sparsamer Brennwerttechnik und Warmwasserspeicher
  • Sonnenterrasse
  • gepflegter Garten
  • Garage mit Gartengerätehaus

LAGE

Das Haus befindet sich in einer ruhigen, gepflegten Wohnlage in unmittelbarer Nähe des Petzinsees. Die Umgebung ist von viel Natur, Wasser und erholsamen Grünflächen geprägt und bietet einen angenehmen Ausgleich zum Alltag. Der See ist in wenigen Minuten fußläufig erreichbar – rund 300 Meter – und lädt zu Spaziergängen, Badepausen und Bootstouren ein. Der zum Objekt gehörende Bootsliegeplatz ermöglicht einen direkten Zugang zum Wasser, was die Lage besonders für Natur- und Wasserliebhaber attraktiv macht.

Dennoch sind die täglichen Wege angenehm kurz: Einkaufsmöglichkeiten, Schulen, ärztliche Versorgung und weitere Einrichtungen des täglichen Bedarfs befinden sich in gut erreichbarer Nähe. Die Anbindung an den öffentlichen Nahverkehr sowie an die umliegenden Ortschaften und Städte ist zuverlässig, sodass auch Pendler hier einen praktischen Wohnstandort finden.

Die Lage vereint Ruhe, Naturnähe und Alltagstauglichkeit – ideal für Menschen, die entspannt wohnen möchten, ohne auf Infrastruktur verzichten zu müssen.

INFRASTUKTUR

Geltow erfreut sich dank seiner guten Infrastruktur zunehmender Beliebtheit. Zahlreiche Geschäfte und Dienstleister sowie der Kita- und Grundschulcampus machen den Ort besonders attraktiv. Rund um das Vereinshaus am Wasser findet ein aktives Vereinsleben statt.

Im näheren Umkreis haben Sie namhafte Lebensmittel-Discounter, einen Baumarkt, eine gute Auswahl an Restaurants, Pizzeriarien, Cafés vieles mehr.

Landeshauptstadt ist schnell erreicht.  Auch Kliniken, Ärzte, Apotheken, Schulen, Kitas usw. sind gut erreichbar.

VERKEHRSANBINDUNG

Über die B1 erreichen Sie Potsdam in etwa 15 Minuten mit dem Auto. Zum westlichen Berliner Ring (A10) sind es rund 12 Kilometer. Potsdam und Werder sind zudem mit der Buslinie 631 gut angebunden. Die Fähre Caputh liegt nur zwei Autominuten entfernt und verbindet Geltow mit dem benachbarten Ortsteil Caputh. Der Bahnhof Caputh-Geltow befindet sich direkt an der Fähre; hier verkehrt die Regionalbahn RB23 zwischen Potsdam Hauptbahnhof und Beelitz-Heilstätten.

OBJEKTBESICHTIGUNG

Bitte schauen Sie sich die Lage des Objektes und das Objekt von außen diskret vorab an. Wenn alles für Sie passt, vereinbaren Sie gerne einen Besichtigungstermin. Besichtigungen sind nur nach Voranmeldung und nach erfolgreicher Registrierung inklusive PDF-Exposé-Download und verifizierter Widerrufsbelehrung möglich. Wir bieten auch eine Besichtigung am Wochenende an. 

14548 Schwielowsee / Geltow

Die Karte zeigt die ungefähre Lage, die vollständige Adresse der Immobilie erhalten Sie mit dem Exposé